DESAGHA.

JL. SETIABUDHI

DESAGHA.

Bentuk lingkaran yang menyerupai cincin merepresentasikan sebuah gambaran ‘eternal love‘ sebagai satu arus yang tidak berujung. Ide ini lahir dari konteks fungsional bangunan sebagai wedding venue. Bentuk lingkaran ini juga seakan ‘memeluk’ ceremony dalam suatu suasana yang hangat dan intim bagi mempelai, keluarga, dan teman-teman. Konsep sirkulasi sebagai bagian dari proses ceremony dikemas dalam suatu konsep sequence perjalanan hubungan menuju pernikahan.

CATEGORY : F&B. Hotel

LOCATION : Bandung, Indonesia

YEAR : 2023

Diawali dengan berjalan di sebuah ramp panjang menanjak yang merepresentasikan proses penjajakan yang terus bertumbuh. Kemudian diajak untuk melewati sebuah jembatan diantara elemen air yang merepresentasikan langkah keberanian dan keseriusan. Selanjutnya dibawa masuk ke dalam bangunan sebagai representasi dari proses pengakraban dengan keluarga sebagai sebuah lingkungan baru. Kemudian diakhiri dengan perjalanan menuju altar sebagai tempat untuk menegaskan komitmen.

Formasi rapat pohon bambu menjadi latar dan menutupi pandangan kedepan sebagai suatu simbol misteri dari perjalanan yang akan dijalani selanjutnya.

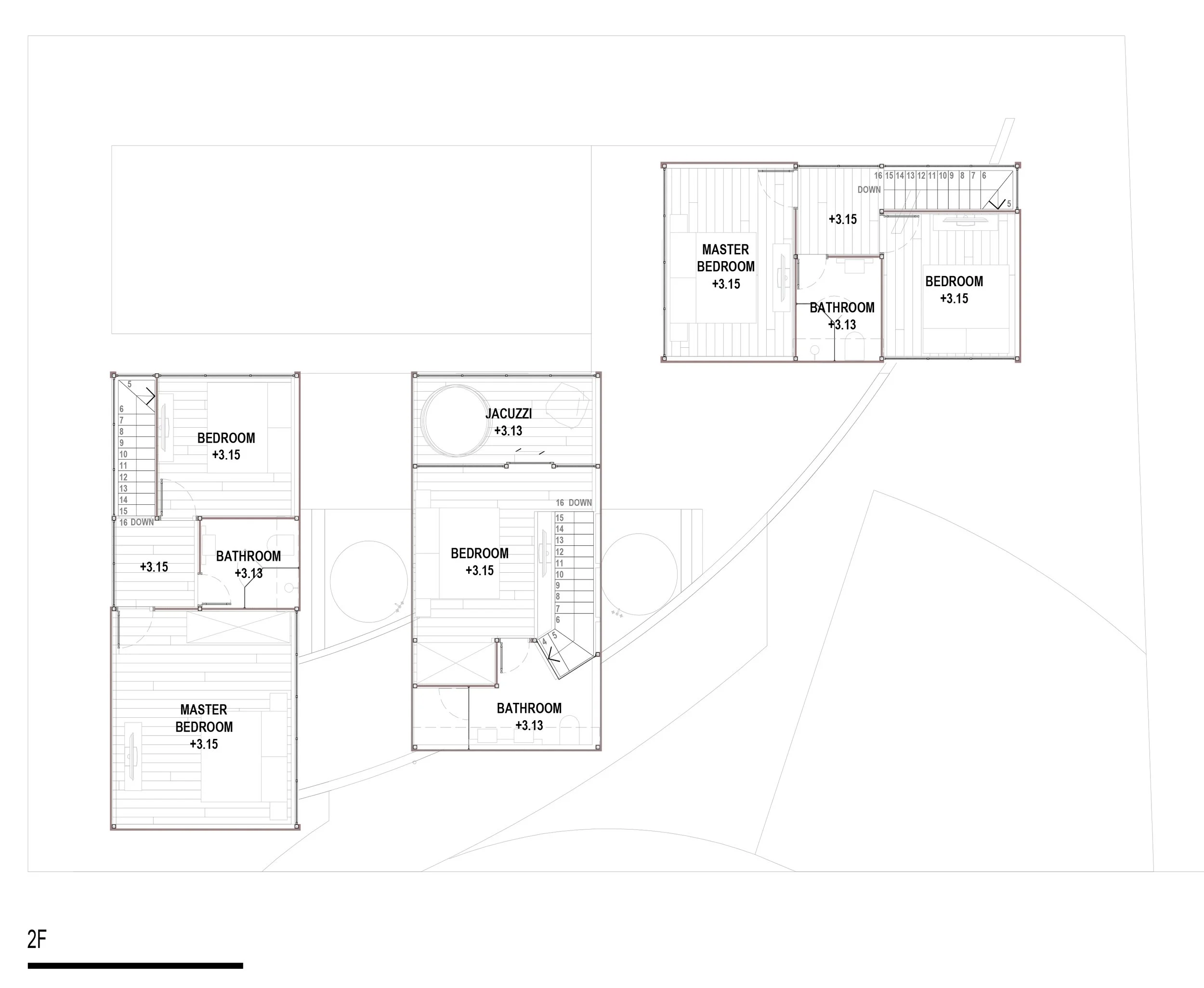
Selain sebagai wedding venue, Desagha juga berfungsi sebagai café pada hari biasa. Desagha juga menyediakan 3 unit villa (cabin kayu) dua lantai yang dilengkapi dengan fasilitas seperti kolam renang dan jacuzzi. Villa ini selain digunakan sebagai fasilitas pendukung ceremony, juga disewakan untuk orang-orang yang ingin menginap sambil menikmati pemandangan area perkebunan dan suasana sejuk ala Kota Bandung

Previous
Previous

BLACK BIRD 347

Next
Next

SOLITUDE